Zum Talblick, Lohmar

Objektbeschreibung

Objektbeschreibung

 

Auf einem traumhaft gelegenen Grundstück entstehen zwei Einfamilienhäuser als Doppelhaushälften.

Die Häuser werden in hochwertiger Massivbauweise errichtet. Insgesamt stehen Ihnen ein großzügiger Wohnbereich mit Küche und Essbereich, ein Gäste-WC mit Dusche, ein Hausanschluss-raum, eine Abstellkammer, 3 Schlafräume, ein Badezimmer sowie ein Aufenthaltsraum im Dachgeschoß zur Verfügung.

 

Exposé herunterladen

 

 

 

 

 

Baubeginn
2022/2023
Grundfläche
ca. 269 m²
Wohnfläche
ca. 162 m²
Ausstattung
individuelle Ausbaustufen
- sprechen Sie uns an -
Zimmer
3 Schlafzimmer
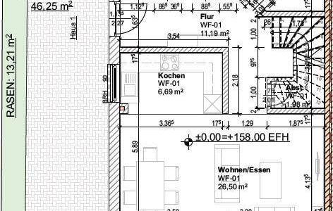
Erdgeschoss
Flur ca. 11,19 m²
Gäste-WC ca. 5,49 m²
Abstellraum ca. 5,82 m²
Hausanschlussraum/Heizung ca. 6,66 m²
Wohnen / Essen ca. 26,50 m²
Kochen ca. 6,69 m²
Terrasse ca. 7,79 m²
Obergeschoss
Flur ca. 5,75 m²
Bad ca. 9,71 m²
Schlafen ca.21,56 m²
Kind 1 ca. 12,49 m²
Kind 2 ca. 12,59 m²
Dachgeschoss/Studio:
Aufenthaltsraum ca. 28,43 m²

Google Maps Karte jetzt anzeigen.

Mit einem Klick auf diesen Link genehmigen Sie, dass eine Google Karte angezeigt wird, wobei Ihre IP-Adresse an Server von Google übertragen wird.

Ortsbeschreibung

 

Halberg liegt im Südwesten des Stadtgebiets von Lohmar. Umliegende Ortschaften sind Ungertz im Norden, Ellhausen und Kreuzhäuschen im Nordosten, Salgert im Osten, Gebermühle im Südosten, Lohmarhohn im etwas entfernteren Süden durch das Jabachtal getrennt, Weegen im Südwesten, Donrath im Südwesten, Westen und Nordwesten sowie Höngen im Nordwesten. 

 

Gute Verkehrsverbindungen zu den Großstädten Köln und Bonn, zur Kreisstadt Siegburg und zum Flughafen Köln/Bonn bestimmen den Standortvorteil der Stadt. 

 

Lohmar bietet sowohl interessante Arbeitsplätze in bedeutenden Unternehmen als auch sehr viel Raum für Erholung und Freizeit. 

Die kommunale Infrastruktur, die landschaftlich überaus reizvolle Lage, vielfältige Freizeiteinrichtungen und ein ausgebautes 170 km-Wanderwegenetz machen die Stadt zu einem begehrten Wohnort und Ausflugsziel.