Sandweg 12, 51503 Rösrath

Objektbeschreibung

Beschreibung

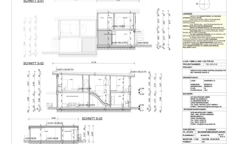
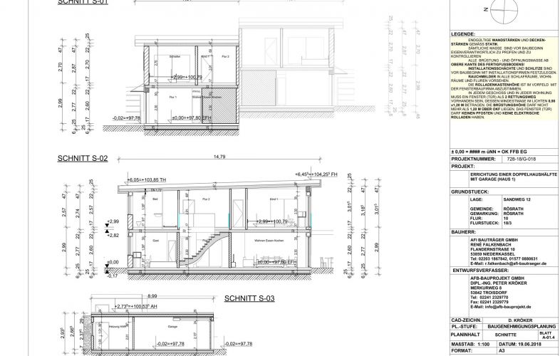
Die Doppelhaushälfte wird in Massivbauweise mit einem Pultdach errichtet. Die Wohnfläche beträgt ca. 151,00 m2 und verteilt sich vom Erdgeschoss bis zum Obergeschoss. Der großzügige Garten ist mit einer Terrasse ausgestattet und nach Süden ausgerichtet. Eine Garage grenzt unmittelbar an das Gebäude und ein Außenstellplatz steht vor der Hausfront zur Verfügung.

 

Exposé herunterladen

Baubeginn
Herbst 2018
Grundfläche
ca. 400 m²
Wohnfläche
ca. 151m²
Ausstattung
individuelle Ausbaustufen
- sprechen Sie uns an -
Zimmer
9 Zimmer sowie einen Hausanschluss- und HWR-Raum
Ausstattung
- Kunststoff-Fenster
- Sicherheitshaustür
- Fassade verputzt
- Luft-Wärme-Pumpe
- Holztreppe
- Fußbodenheizung
- gefliester Hausanschlussraum
- Bäder gefliest

Gerne informieren wir Sie über weitere Ausbaustufen.
Erdgeschoss
- Diele ca. 12,75m2
- Gast ca. 9,45m2
- HWR ca. 3,71m2
- Gäste-WC ca. 3,98m2
- Wohnen-/ Essen-/ Kochen ca. 42,92m2
- Hausanschlussraum ca. 5,57m2
Obergeschoss
- Flur ca. 6,83m2
- Bad ca. 9,24m2
- Schlafen ca. 20,57m2
- Kind 1 ca. 13,10m2
- Kind 2 ca. 21,91m2
- Abstellraum ca. 1,45 m2
Garten
Terrasse ca. 11,80m2

Google Maps Karte jetzt anzeigen.

Mit einem Klick auf diesen Link genehmigen Sie, dass eine Google Karte angezeigt wird, wobei Ihre IP-Adresse an Server von Google übertragen wird.

Ortsbeschreibung

 

Die Stadt Rösrath liegt im Osten des Rheinisch-Bergischen Kreises, nur 19 Kilometer südöstlich von Köln. Umgeben von den Grünflächen der Wahner Heide und des Königsforstes, liegt Rösrath am Rande des Bergischen Landes.

 

Die reizvolle und intakte Landschaft bildet ein attraktives Umfeld für die hier wohnenden Menschen. Daher ist es nicht verwunderlich, dass die Gemeinde zu den beliebtesten Wohnlagen in der Kölner Region zählt.

 

Die zahlreichen Neubauten der 90er Jahre belegen dies. Die Infrastruktur von Rösrath ist gut. Ärzte, Kindergärten und Schulen aller Art sowie Einrichtungen zur Deckung des täglichen Bedarfs sind vorhanden.

 

Es besteht eine ideale Anbindung an die Autobahnen A 3 und A 4. Wenn man nicht mit dem Auto unterwegs sein möchte, kann man im Bahnhof Rösrath - Stümpen in die Regionalbahn nach Köln steigen.